Les Condamines - La Brissaouda

830 Chemin Hugues Bérenguier 06610 La Gaude
830 Chemin Hugues Bérenguier 06610 La Gaude
The Provençal Mas "La Brissaouda" is located in a green setting particularly appreciated for its natural environment. In the immediate vicinity: hiking trails, mountain bike trails, climbing center, tennis. 20% reduction on the rate for the third consecutive week of a rental.

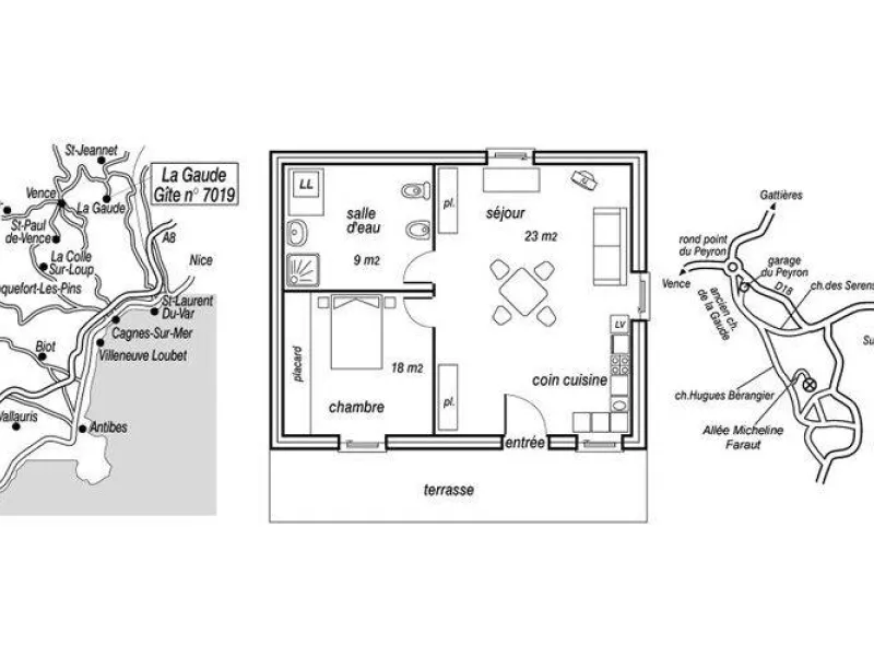
Gîte adjoining the owner's house. Access on one level via private terrace. Living room including 1 sofa bed for 1 person (140x190). Open kitchen equipped with every comfort. 1 Bedroom with 1 double bed (140x190) high-end bedding. Shower room, WC. Independent terrace on land planted with centuries-old olive trees. Enclosed parking equipped with a charging station for electric cars. Secure and equipped bike room. Electric heating. All charges included except tourist tax. Optional: Cleaning package and linen/toilet rental, sheets: €22/pers. Possibility to recharge car electric terminal at extra cost.
This establishment is Accueil Vélo and offers specific services for cyclists.

Contact par mail

* Required fields
The data collected in this form are processed by La Méditerranée à vélo for the purpose of responding to your request. In accordance with the regulations in force relating to the protection of personal data, you can exercise your rights or obtain any additional information by contacting the Data Protection Officer by email.

Report a problem with this establishment

* Required fields
The data collected in this form are processed by La Méditerranée à vélo for the purpose of responding to your request. In accordance with the regulations in force relating to the protection of personal data, you can exercise your rights or obtain any additional information by contacting the Data Protection Officer by email.